Predaj domu
Horné Hámre
Po rekonštrukcii
185 m²

Predám dom na lazoch, dom v lokalite Horné Hámre

Miloš W.

Majiteľ
249 900 €
1 351 €/m²

Základné informácie

  • Typ inzerátu: Predaj domu
  • Lokalita: Horné Hámre
  • Stav domu: Po rekonštrukcii
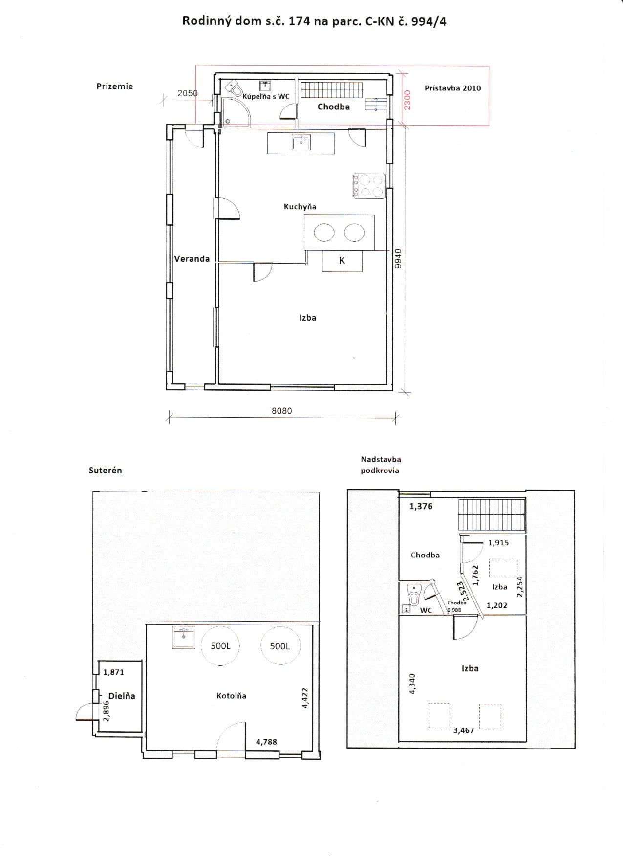
  • Úžitková plocha: 185 m²

Pozemok a dispozícia

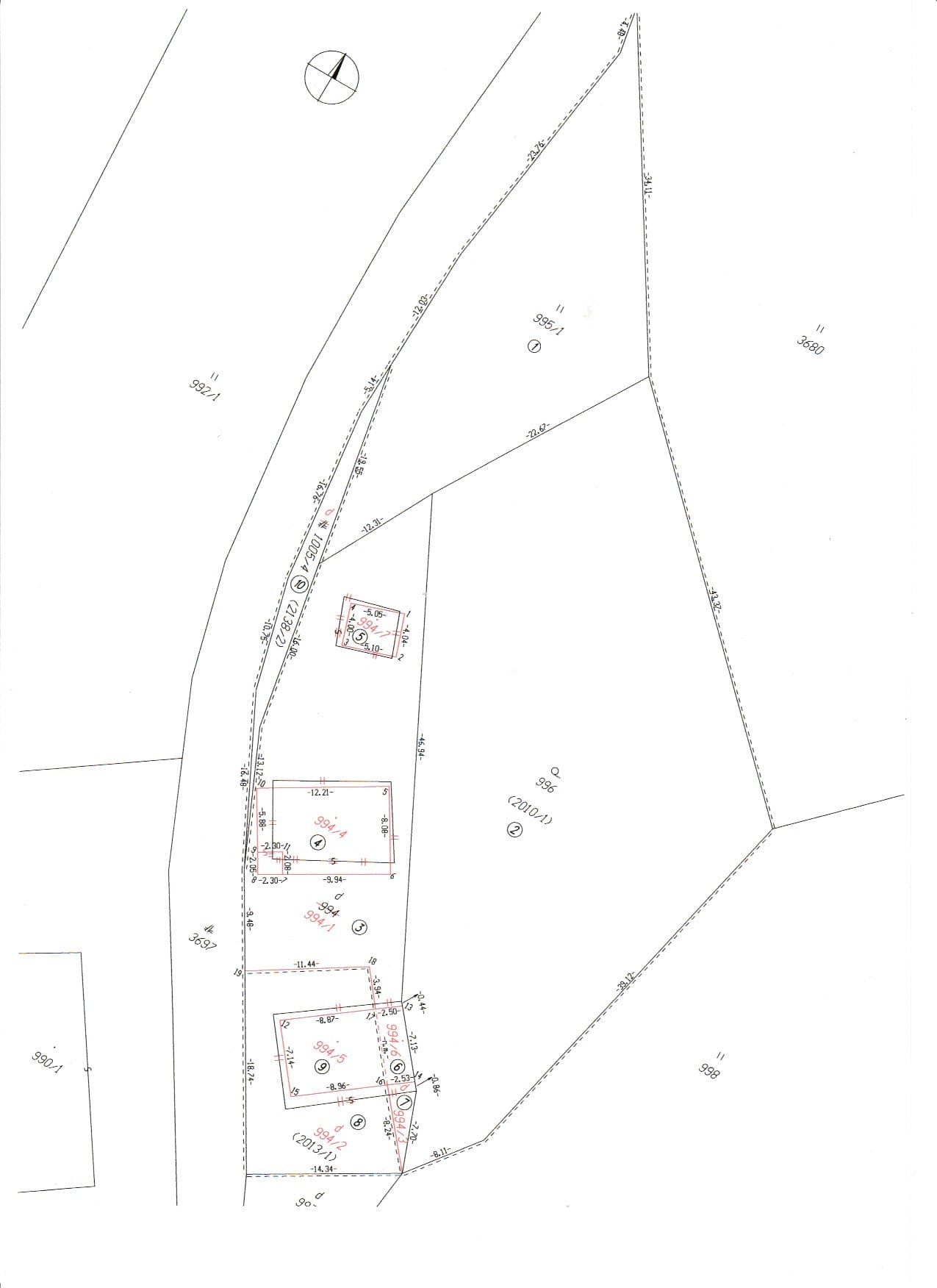
  • Výmera pozemku: 3 082 m²
  • Zastavaná plocha: 98,6 m²
  • Úžitková plocha: 185 m²
  • Rok výstavby: 1950
  • Rok rekonštrukcie: 2022
  • Vlastníctvo: Osobné
  • Konštrukcia: Zmiešaná
  • Zateplenie: Nie
  • Celkový počet poschodí: 2
  • Počet izieb: 3
  • Iné miestnosti: Pivnica, terasa
  • Typ terénu: Svahovitý
  • Siete a technológie: Prístupová cesta, elektrina, kanalizácia, studňa
  • Ďalšie: Slnečný pozemok, pekný výhľad
  • Výhody: Cykloturistika, tiché prostredie, turistika, vodné športy

Technické parametre

  • Kúrenie: Lokálne
  • Okná: Plastové
  • Strecha: Sedlová
  • Krytina: Škridplech
  • Kuchyňa: Sporák, chladnička, varná konvica, mikrovlnka, kuchynská linka
  • Sociálne zázemie: Oddelené wc, sprchový kút, práčka
  • Parkovanie: Na pozemku

Popis domu

**Predám priestranný zrekonštruovaný rodinný dom s veľkým pozemkom a nádherným výhľadom** Ponúkam na predaj krásny 3 izbový rodinný dom na lazoch nad Žarnovicou priamo od majiteľa – výhodne, bezpečne a bez zbytočných sprostredkovateľských poplatkov či maklérov. Dom je určený pre tých, ktorí hľadajú únik od ruchu mesta, pokojné bývanie a zároveň dokonalé miesto na život aj relax. Nachádza sa v tichej lokalite s nádherným výhľadom, ideálnym pre milovníkov prírody, turistiky, cykloturistiky či vodných športov. Je obklopený pohorím Vtáčnik, s nádherným výhľadom na Štiavnické vrchy. Je situovaný v extraviláne obce Horné Hámre, osada U Pukov. Na prízemí domu je vstupná veranda, kuchyňa, obývacia izba, kúpeľňa so sprchovým kútom a WC, chodba a schodisko. V podkroví je chodba, 2 izby a WC s umývadlom. V obci je základná občianska vybavenosť a drobné služby. Okresné mesto Žarnovica je vzdialené 4 km, dopravné spojenie je riešené prímestskou autobusovou dopravou, čas jazdy asi 5 minút. Mesto má komplexnú občiansku vybavenosť a služby, napojenie na diaľnicu/rýchlostnú cestu R1, ako aj na železnicu. K domu patria aj ďalšie 2 stavby: 1./ Hospodárska budova - sčasti využívaná ako dreváreň a sčasti ako humno/skladový priestor(možnosť využitia ako garáž) 2./ Pôvodný senník bol prerobený na letné sedenie - na prízemí je spoločenská miestnosť s veľkým stolom, lavicami, stoličkami a príborníkom. Súčasťou je aj veľká terasa s výhľadom na okolitú prírodu. V podkroví letného sedenia je oddychová izba. Všetky 3 stavby sú zapísané na liste vlastníctva a zakreslené v katastrálnej mape. **Základné parametre:** - Cena: **249 900 €/ DOHODA možná** - Veľkosť pozemku: **3082 m²**(možnosť využitia na výsadbu ovocného sadu) - Zastavaná plocha: **98,6 m²**, úžitková plocha: **185 m²** - Počet izieb: **3** + pivnica a priestranná terasa - Počet podlaží: **2** - Osobné vlastníctvo **Technické a úžitkové výhody:** - Dom je kompletne zrekonštruovaný v roku 2022 (pôvodná stavba z roku 1950), použité kvalitné materiály - Nezateplený dom – ideálne riešenie pre tých, ktorí ocenia autentický štýl a reguláciu vetrania vlastným tempom - Nové plastové okná - Strecha sedlová, kvalitné kovovo-škridlové krytiny - Lokálne vykurovanie (murovaný komín s nerezovou vložkou, nad strechou izolovaný). V kuchyni je funkčná murovaná pec s liatinovými platňami, v obývacej izbe sú krbové kachle - K dispozícii pivnica na uskladnenie (sú tam osadené 2x500L nádrže na vodu s čerpadlom) - Pod verandou je aj dielnička/náraďovňa - Vlastné parkovanie priamo na pozemku **Vybavenie a prípojky:** - Kuchyňa vybavená: sporák, chladnička, mikrovlnka, kredenc, kanvica - Samostatné WC, sprchovací kút a práčka - Prípojky: elektrina(230V/400V), vlastná studňa, kanalizácia, prístupová cesta **Výhody lokality:** - absolútny pokoj a ticho - krásne slnečné miesto s úžasným výhľadom - ideálny pre rodiny, aktívnych ľudí či milovníkov veľkého súkromia - množstvo možností na aktívny oddych priamo od domu - spája výhody vidieckeho prostredia s pohodovým prístupom k mestským službám Dom je vhodný na trvalé bývanie, aj ako víkendová chalupa či investícia. Predaj priamo od majiteľa – férovo a rýchlo. **Neváhajte – dom s jedinečným pozemkom a atmosférou ako stvorený pre Váš nový začiatok! Kontaktujte ma ešte dnes a dohodnite si osobnú obhliadku.**

Fotografie

Predám dom na lazoch, dom v lokalite Horné Hámre
Predám dom na lazoch, dom v lokalite Horné Hámre
Predám dom na lazoch, dom v lokalite Horné Hámre
Predám dom na lazoch, dom v lokalite Horné Hámre
Predám dom na lazoch, dom v lokalite Horné Hámre
Predám dom na lazoch, dom v lokalite Horné Hámre
Predám dom na lazoch, dom v lokalite Horné Hámre
Predám dom na lazoch, dom v lokalite Horné Hámre
Predám dom na lazoch, dom v lokalite Horné Hámre
Predám dom na lazoch, dom v lokalite Horné Hámre
Predám dom na lazoch, dom v lokalite Horné Hámre
Predám dom na lazoch, dom v lokalite Horné Hámre
Predám dom na lazoch, dom v lokalite Horné Hámre
Predám dom na lazoch, dom v lokalite Horné Hámre
Predám dom na lazoch, dom v lokalite Horné Hámre
Predám dom na lazoch, dom v lokalite Horné Hámre
Predám dom na lazoch, dom v lokalite Horné Hámre
Predám dom na lazoch, dom v lokalite Horné Hámre
Predám dom na lazoch, dom v lokalite Horné Hámre
Predám dom na lazoch, dom v lokalite Horné Hámre

Miloš W.

Majiteľ
249 900 €
1 351 €/m²

Zdieľať s priateľmi