Predaj bytu
Ružinov
Pôvodný
75 m²

Predám slnečný byt v lokalite Ružinov

Ľuboš Š.

Majiteľ
241 000 €
3 213 €/m²

Základné informácie

  • Typ inzerátu: Predaj bytu
  • Lokalita: Ružinov
  • Stav bytu: Pôvodný
  • Úžitková plocha: 75 m²

Podrobné informácie

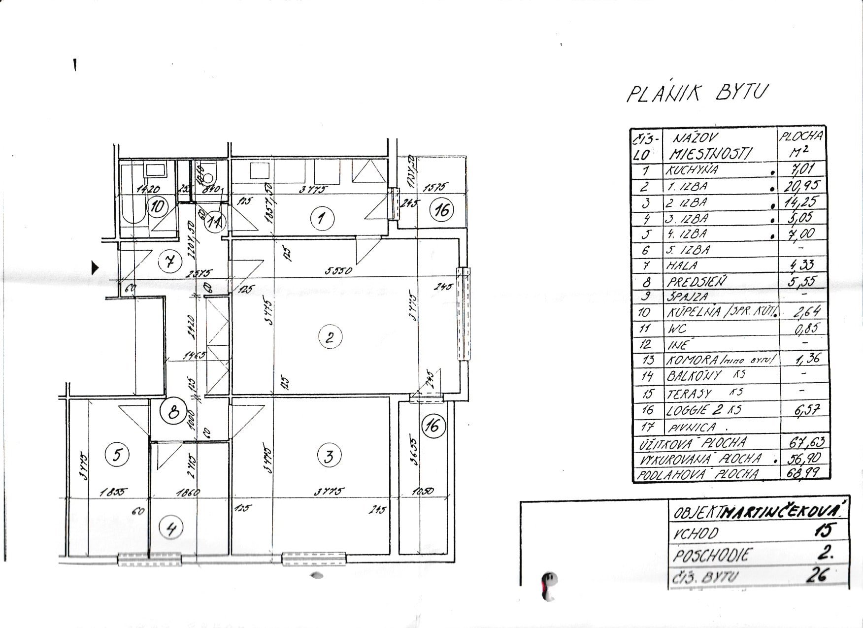
  • Typ bytu: 4 izbový byt
  • Úžitková plocha: 75 m²
  • Rok výstavby: 1965
  • Rok rekonštrukcie: 2009
  • Vybavenie: Internetové pripojenie
  • Okná: Plastové
  • Kúrenie: Centrálne
  • Konštrukcia: Panelová
  • Prevládajúci typ podláh: Parkety
  • Sociálne zázemie: Oddelené wc
  • Iné miestnosti: Balkón, logia, špajza
  • Parkovanie: Verejné
  • Zateplenie: Áno
  • Výťah: Áno
  • Poschodie: 2
  • Celkový počet poschodí: 10
  • Výhody: Nemocnica, mhd, škola, škôlka, obchody

Popis bytu

### Priamo od spoluvlastníka: Výhodný predaj priestranného 4-izbového bytu v žiadanej lokalite! Ponúkam na predaj útulný 4-izbový byt s rozlohou 75 m² za jedinečnú cenu **241 000 €**. Byt sa nachádza na 2. poschodí z 10 v zateplenom panelovom dome s moderným výťahom. Nové stupačky. Predaj prebieha priamo bez maklérov, čo znamená úsporu vašich nákladov a férový, transparentný postup medzi vlastníkmi. **Dispozícia a benefity bytu:** - Priestranná obývacia izba, tri samostatné izby - K dispozícii loggia, balkón aj praktická komora - Byt je v pôvodnom, veľmi zachovalom stave, vhodný na úpravu podľa vlastných predstáv - Plastové okná zabezpečujú ticho a úsporu energie - Klasické parketové podlahy - Oddelené WC zvyšuje komfort bývania - Pripojenie na internet je samozrejmosťou **Bytový dom:** - Postavený v roku 1965, kompletná rekonštrukcia spoločných priestorov prebehla v r. 2008 - Zateplený, s novým výťahom - Vykurovanie centrálne **Výborná lokalita:** - Všetko dôležité na dosah: škola, škôlka, nemocnica, nákupné možnosti a výborné spojenie MHD - Parkovanie bezproblémové na verejných parkovacích miestach Ak hľadáte byt, ktorý si môžete zariadiť podľa seba, v tichej, kompletne vybavenej časti mesta – toto je ideálna príležitosť! Predávame priamo, bez provízie a zbytočných sprostredkovateľov. Férovosť a serióznosť sú pre nás samozrejmosťou. Zavolajte a dohodnite si obhliadku! Tento byt čaká možno práve na vás.

Fotografie

Predám slnečný byt v lokalite Ružinov
Predám slnečný byt v lokalite Ružinov
Predám slnečný byt v lokalite Ružinov
Predám slnečný byt v lokalite Ružinov
Predám slnečný byt v lokalite Ružinov
Predám slnečný byt v lokalite Ružinov
Predám slnečný byt v lokalite Ružinov
Predám slnečný byt v lokalite Ružinov
Predám slnečný byt v lokalite Ružinov
Predám slnečný byt v lokalite Ružinov
Predám slnečný byt v lokalite Ružinov
Predám slnečný byt v lokalite Ružinov
Predám slnečný byt v lokalite Ružinov
Predám slnečný byt v lokalite Ružinov
Predám slnečný byt v lokalite Ružinov
Predám slnečný byt v lokalite Ružinov
Predám slnečný byt v lokalite Ružinov
Predám slnečný byt v lokalite Ružinov
Predám slnečný byt v lokalite Ružinov
Predám slnečný byt v lokalite Ružinov

Ľuboš Š.

Majiteľ
241 000 €
3 213 €/m²

Zdieľať s priateľmi